关注腾飞头条,掌握前沿资讯
【革命性的认知——记忆与成长】首钢·贵州之光 | 日清设计
2018-06-06 / 浏览:2454
印象
— 钢铁之城 · 初见 —
贵州省府,南明河畔;
爽爽贵阳,誉载人寰。
避暑之都--贵阳,有“林城”之美誉,因境内贵山之南而得名。初到贵阳可以体味那海一般浩瀚无边的大山,倾听山谷间河流的歌唱以及远处传来的悠悠笛声,别有一份大山深处的纯朴和温和。本以为贵阳也如北方城市般大气荒芜,不想它也似生活在南方,终身水烟弥漫的温婉人,荣光潋滟,柳腰裙儿荡,看不尽的是旖旎扰人的春光。这就是贵阳,喧嚣中宁静的山中之城。

一个时代,一种精神
贵钢旧址的变迁牵动着每一个贵钢人,也牵动着一座城市甚至于一个时代的记忆。建厂以来,贵钢在为贵州创造巨大物质财富的同时,也积淀了宝贵的精神宝藏。
“老贵钢”
我爷爷是第一代‘贵钢人’,建厂初期因为到贵钢工作,携家带口从遵义来到贵阳。我爸爸86年到贵钢工作,在厂里认识了我妈,恋爱、结婚、生我。我小学在贵钢子小,初中在子中,当时教室有暖气,在厂里有食堂吃饭,还可以在厂区里面到处跑、到处玩。后来到外面上高中,说起这些,厂外的同学都特别羡慕。80后的周雯,说自己是“第三代贵钢人”。这里充满了她的记忆……

或许,展望未来我们有足够的理由期待片区的复兴,但是回望过去,贵钢在贵州钢铁工业发展史上留下了浓墨重彩的一笔,值得每一个人去怀念和铭记!
黔所未有的光彩

腾云驾雾黔南行,暮色俯览筑林城。
华灯点点繁星闪,车流蛇婉舞金龙。
在贵阳城市全面扩容以及贵阳打造环境模范城市与生态文明城市的时代背景下,首钢·贵州之光,以得天独厚的贵阳传统核心复兴区及航空港经济区交汇地段,跃升为国际级城市平台,轻松收纳所有繁华与便捷,更为城市作出具象定解,贵阳新都心非此莫属。

◎ 地标性办公大楼
设计
— 贵山之南 · 山河千里 —

本案位于贵阳市主城区南明区东南角,周边配套建设成熟,交通条件较为便利,周围景观绿化条件良好。项目用地是贵阳中心城区稀有的一块大体量开发用地,连接老城和空港新城,处于临空经济辐射区。设计师试图用「解构主义」手法,通过高科技体现现代工业文化的活力;将老厂区的规划图底与历史遗留剪碎,重组,散落的记忆碎片在老厂区的各个区域形成新的时光节点。设计师选择摒弃冗杂的设计元素,适当保留设计的细节,这样既适应项目环境本身的场地感,又给来访者营造出一种在过往喧杂的接待中心体验不到的「平静的舒适感」。


开阖有致,互为阴阳

建筑主体由二层10米的锈钢板主体和四层20米的玻璃盒子交叠,接待中心背山而坐,场地中心面向人工湖水,建筑依山傍水,风景甚佳。漂浮空中的透明盒子采用不规则斜面,大尺寸玻璃面板拼接而成;将湖面的观景视野最大化。锈钢板主体表皮映衬着远处山脉的轮廓,使人“不出城郭而获山水之怡,身居闹市而得林泉知趣”;整个空间布局开阖有致,建筑与水景互为阴阳,藏风聚气暗含风水,释放了场地环境的最大优势。


元素碰撞,精雕细啄

设计师刻意采用了提取钢厂文化元素作为建筑底部主体色彩,耐候钢板 局部穿孔的研究使建筑更具艺术气息;与山形投影的玻璃幕墙结合的感觉让建筑整体气质更加融合当地氛围,营造一种原生态的感觉。上半部建筑采用大面积玻璃幕墙展开,映透出黄金比例切割的玻璃表皮机理;凹凸的材料质感更是加强了建筑表面的光影关系,使立面更加丰富生动。现代元素与钢厂文化的碰撞,强调锈蚀钢粗野的原生态设计感,更有老钢厂历史的穿越感;玻璃部分强调精细化的设计,表现精致现代生活的时代感,使整体设计更具有意境,更具有想象。



技术
— 解构设计 · 重组肌理 —
◎ 方案效果图
设计师首次完整应用bim-revit信息化建模设计的项目,先进三维的设计手段成功地实现了建筑师精确地对建筑表皮的设计。特别之处为破碎的想法,非线性设计的过程。

针对传统施工单位对于项目的二维图纸的思考方式,为了保证项目整体造型的完整性,引入bim的团队帮助;bim技术完成尺寸达到 3mx4.5m的单面玻璃进行表皮设计;不规则的斜面,且无相同的尺寸玻璃对施工安装提高了难度。单体体量之大可见一斑。在三维模型上实现结构施工的合理化,修正土建误差,并同幕墙方案进行碰撞检测试验,在施工之前做到提前发现问题,合理优化方案。同时在幕墙方案中,通过参数化表皮计算,模块化整体立面造型,输出精确节点坐标与尺寸。从而使得整个方案可以在施工阶段形成模块化数据化从而方便施工单位对于样料的整体采集。

◎ 吊装现场
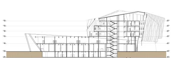
建筑形体分为上下两个单体研究:底部体块充分利用本地钢材料通过弯曲,折叠和生锈的手法,把山的轮廓投影在折叠的锈钢板上;体现其年代感和质朴的贵阳人民的精神。建筑头部采用现代的玻璃材料元素,通过解构,拼贴,组合、试图创造出轻盈的,富有变化的,充满现代感的立面效果。反射着蓝天的玻璃盒子我们称之为“贵阳之钻”。建筑形如雕塑的特质使上述两个元素在城市肌理中形成了紧密联系。建筑核心如同释放着能量,使两座体量呈现出悬浮的状态,同时也展现出了建筑内部活动的动态特性。


技术图纸

◎ 立面图

◎ 剖面图